Skip to content
ArhitektBiroBlahaArhitektBiroBlaha
  • Menu
  • Naslovna
  • Portfolio
  • Kontakt
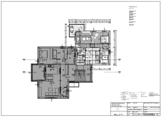
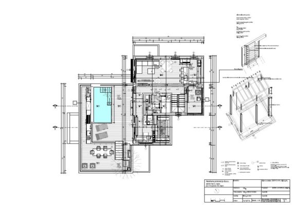
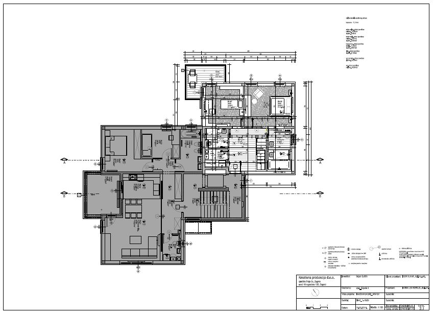
2015 | Privatni objekt

Bijenik B / adaptacija stana

PROJEKT: 

Adaptacija dvoetažnog stana

LOKACIJA:

Zagreb, Bijenik, Hrvatska

PROJEKTANTI:

Igor Blaha, dipl.ing.arh., Ivana Lea Korejzl, dipl,arh.

VLASNIK:

Privatni

STATUS:

Realizacija

TIP PROJEKTA:

Stanovanje

Karlobag / rekonstrukcija obiteljske kuće
Rapska / Hotel
  • Naslovna
  • Portfolio
  • Kontakt
Copyright 2026 © Arhitekt Biro Blaha d.o.o.
  • Naslovna
  • Portfolio
  • Kontakt