Skip to content
ArhitektBiroBlahaArhitektBiroBlaha
  • Menu
  • Naslovna
  • Portfolio
  • Kontakt
2015 | Hotel | Poslovni objekt

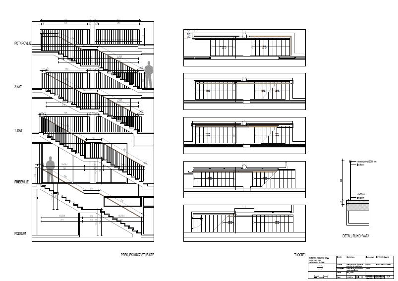
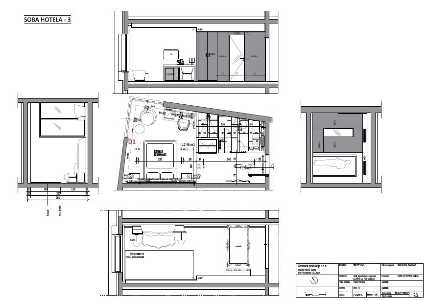
Rapska / Hotel

PROJEKT: 

Uređenje interijera Hotela

LOKACIJA:

Zagreb, Hrvatska

GLAVNI PROJEKTANT:

Igor Blaha, dipl.ing.arh.

PROJEKTANT:

Ivana Lea Korejzl, dipl,arh.

VLASNIK:

Privatni

STATUS:

Realizacija

TIP PROJEKTA:

Ugostiteljsko turistička djelatnost

Bijenik B / adaptacija stana
Gundulićeva / interijer butika
  • Naslovna
  • Portfolio
  • Kontakt
Copyright 2026 © Arhitekt Biro Blaha d.o.o.
  • Naslovna
  • Portfolio
  • Kontakt