Skip to content
ArhitektBiroBlahaArhitektBiroBlaha
  • Menu
  • Naslovna
  • Portfolio
  • Kontakt
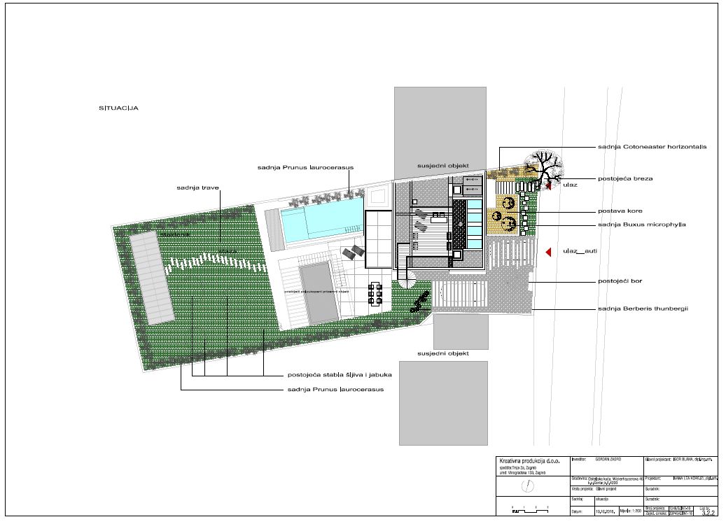
2016 | Privatni objekt

Wickerhauserova / obiteljska kuća

PROJEKT: 

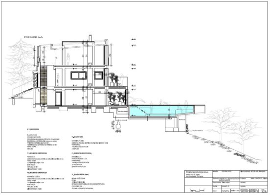
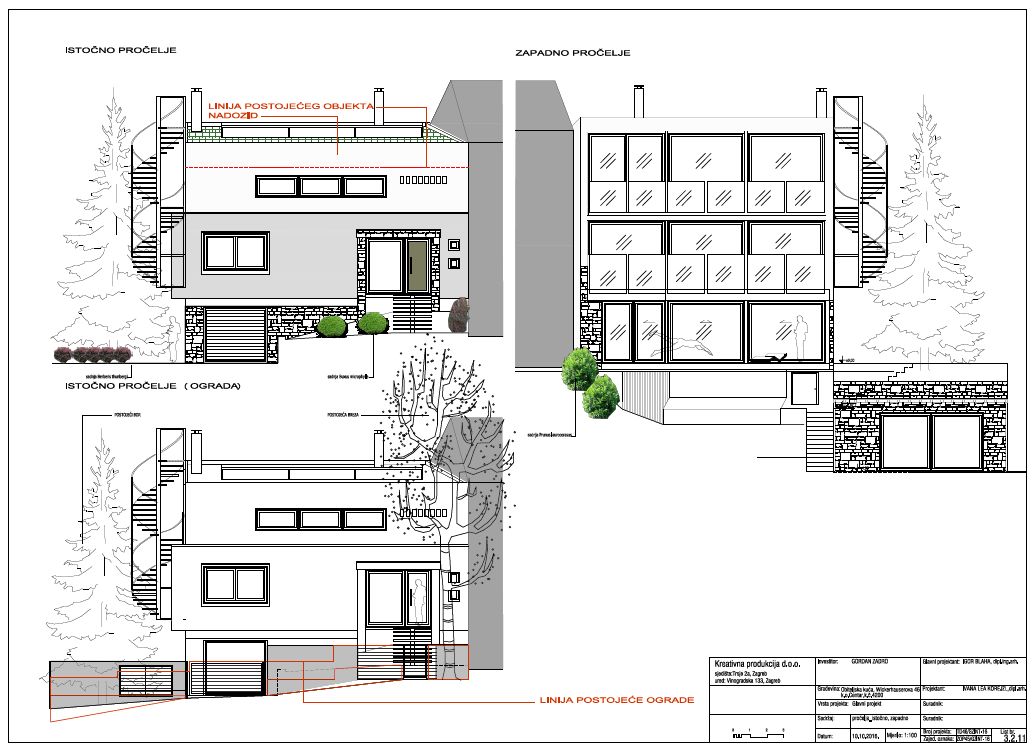
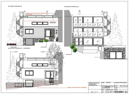
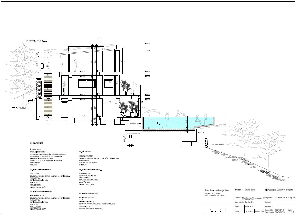
Rekonstrukcija, dogradnja i nadogradnja obiteljske kuće i gradnja bazena

LOKACIJA:

Zagreb, Wickerhauserova, Hrvatska

GLAVNI PROJEKTANT:

Igor Blaha, dipl.ing.arh.

PROJEKTANT:

Ivana Lea Korejzl, dipl,arh.

VLASNIK:

Privatni

STATUS:

Realizirano

TIP PROJEKTA:

Stanovanje

Remetinečka / Hotel
Bijenik RM / Adaptacija stana
  • Naslovna
  • Portfolio
  • Kontakt
Copyright 2026 © Arhitekt Biro Blaha d.o.o.
  • Naslovna
  • Portfolio
  • Kontakt